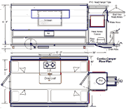
The Combo-Camper is designed to carry
your boat to the lake, and then folds out to become
a very spacious camper at a nearby campground. It
gives you the best of both worlds, and can carry your
current or future boat up to 18 ft long. The unique
features offered includes a rotating axle that lets
you lower the camper to ground level for stable and
easy access.
 |
The Combo-Camper
is designed to carry your boat to the lake,
and then fold out to become a very spacious
camper at a nearby campground. |
Features:
The combo-Camper trailer allows you to have both your
boat and camper in one tow-able unit. It gives you
a light weight package that can be towed with a light
truck, van, or car, for long distances without worry.
Then, when your adventure is done, the complete unit
including the boat, the trailer, and the camper, can
be stored in a single bay in your garage. This feature
will be of significance to those who have zoning restrictions
for parking boats and campers.
 |
When your adventure
is done, the complete unit including the boat,
the trailer, and the camper, can be stored in
your garage. |
Once the Combo-Camper is set up at you camp site,
you will have all the comfort of a lakeside cabin,
including air conditioning and a shower for Mamma
and the Teens. No need to remind one of the need for
these amenities for long time camping at the lake
or river. If there is a lack of a plug in at your
site, you can run your unit needs with a small electric
generator. However, most campgrounds have hook-ups
for electric and water.
 |
Once the Combo-Camper
is set up at you camp site, you will have all
the comfort of a lakeside cabin, including air
conditioning and shower for Mamma and the Teens. |
The floor plan shown is for a family of four. An
extension to one of the bunks could be added in the
event you wish to install a double bed.
There is a galley counter that is 42” wide
with a drop leaf table providing seating for 4 The
interior space in the unit is huge with 6’-8”
head room.
 |
Setting Up should
be about the same as setting up your camp with
a family size tent. |
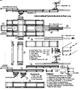
Setting Up should be about the same as setting up
your camp with a family size tent. The components
for the structure can be transported inside the boat.
The longest pieces will be the truss for the top,
the tubing for the roof, and the fiberglass slats.
These items are 12 ft long when rolled for transport.
The set up will work best with 2 people, but one person
can handle the job without worry. If your campsite
has water and electric, you can install the shower
and the air conditioner. A small lightweight air unit
can be installed in the plans or kit.
 |
The Combo-Camper
can be fabricated from a set of plans, or can
be purchased as a kit that requires bolting
the pre-fabricated and welded components together. |
The Combo-Camper can be fabricated from a set of
plans, or can be purchased as a kit that requires
bolting the pre-fabricated and welded components together.
You can also make the unit in different lengths and
widths by adjusting the structure dimensions shown.
Cost of plans is $300 including the trailer and all
the camper drawings. The trailer plans included can
handle boat up to 24 ft and weights up to 10k lbs.
Harold Duffield
About the designer: Harold
Duffield - age 67 - grew up on the Mississippi River
- was whats known as a "river rat". He
has been messing about and building boats for over
50 yrs. Now he is offering plans and kits for fishing
boats, shantys, house boats and even sailboats in
aluminum as well as finished boats. https://www.oneuglyboat.com/

Other articles by Harold Duffield:

|